Việc xây dựng hố thang máy đúng kỹ thuật ảnh hưởng rất nhiều tới việc vận hành và hoạt động của thang máy sau này. Nếu bên thiết kế công trình am hiểu và tiếp xúc nhiều với thang máy thì ngay từ khi thiết kế ngôi nhà, họ sẽ thiết kế đầy đủ các yêu cầu kỹ thuật của hố thang máy còn ngược lại thì chủ đầu tư cần phải tham vấn kỹ thuật từ nhà cung cấp thang.

Sau đây là những vấn đề cần phải được chú trọng khi tiến hành xây dựng hố thang, hy vọng những thông tin này sẽ hữu ích cho Quý khách hàng:
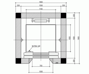
1. Kích thước hố thang (kích thước lọt lòng):
Đó là kích thước chiều ngang và chiều sâu hố. Tùy vào loại tải trọng mà để kích thước cho hợp lý. Ví dụ: tải trọng 350kg thì kích tiêu chuẩn là 1500mm (rộng) x 1500mm (sâu),…mỗi loại thang có mỗi kích thước khách nhau

Mỗi loại thang yêu cầu kích thước khác nhau cho nên trước khi thiết kế nhà cũng như xây dựng thì Quý chủ đầu tư cần phải chốt được loại thang sẽ dùng, từ đó yêu cầu công ty thang máy cung cấp bản vẽ thiết kế hố thang và giám sát trong quá trình xây dựng.
Khi chọn thang nhập khẩu nguyên chiếc thì cần phải tuân thủ chính xác theo kích thước yêu cầu của hãng.
Còn với dòng thang máy sản xuất cabin trong nước thì do cabin sẽ được sản xuất theo kích thước hố thang thực tế xây dựng cho nên khi xây sai kích thước yêu cầu vẫn có thể sửa đổi được, khi đó cabin sẽ điều chỉnh bé hơn hoặc rộng ra tương ứng theo hố thang.
2. Hố PIT:
Hố pit là phần tính từ cốt 0:0 xuống. Về mặt yêu cầu kỹ thuật thì hố PIT phải đảm bảo luôn trong tình trạng khô ráo, vì thế khi làm hố PIT thang máy nên đổ bê tông cả 5 mặt hố với chiều dầy ít nhất 200mm. Chiều sâu hố PIT cũng do từng loại thang, từng loại tải trọng quyết định, với thang máy gia đình thì hốt PIT tối thiểu phải đạt 550mm.

3. Đà linteau giữa tầng:
Hệ thống rail dẫn hướng thang máy yêu cầu khoảng cách 1500mm phải có một điểm bắt cố định vào tường nên khi làm hố cần phải làm hệ thống đà linteau 3 mặt hố vào khoảng giữa tầng.
Lưu ý: Với thang máy đối trọng đặt bên hông thì đà linteau giữa tầng chỉ cần làm ở 2 mặt bên hông hố thang.
Với loại thang máy gia đình tải trọng nhỏ thì nếu hố thang được xây bằng gạch đặc thì có thể bắt rail trực tiếp vào gạch thay vì đà linteau bê tông.
4. Phòng máy thang máy
Thang máy sẽ có hai loại về cách bố trí phòng máy là:
- Thang có phòng máy (phòng kỹ thuật) – Machine Room (MR)
- Thang không phòng máy – Machine Room Less
Đọc thêm: Nên chọn thang máy có phòng máy hay không phòng máy?
Khi chọn thang có phòng máy cần lưu ý:
Với loại thang máy có phòng máy, khi đổ sàn cần phải chừa trống các lỗ kỹ thuật, vị trí và kích thước các lỗ như thế nào Quý khách vui lòng liên hệ với công ty thang máy để được tư vấn chính xác nhất. Ngoài ra, Quý khách cũng không được bỏ quyên phần móc treo Palang trên nóc phòng máy.

Thang không phòng máy không cần phòng kỹ thuật nhưng vẫn phải đảm bảo:
- Có dầm chịu lực để đặt máy kéo
- Có móc treo pa lăng
- Đảm bảo chiều cao từ dầm chịu lực lên tới đỉnh hố thang
- Có dầm chịu lực để đặt máy kéo
- Có móc treo pa lăng
- Đảm bảo chiều cao từ dầm chịu lực lên tới đỉnh hố thang
Cửa tiếp cận máy kéo phục vụ cho quá trình lắp đặt, bảo trì, sửa chữa say này. Cửa tiếp cận máy kéo phục vụ cho quá trình lắp đặt, bảo trì, sửa chữa say này.
5. Các vấn đề chung:
Vì thang máy vận hành theo phương thẳng đứng một cách gần như tuyệt đối, chính vì thế khi xây dựng cần phải đảm bảo hố không được quá nghiêng, vặn, móp. Ngoài ra, về mặt kết cấu, với các loại thang tải trọng bé, thấp tầng, chỉ cần xây cột bê tông 4 góc và bo bằng tường gạch.
Với công trình mà cửa thang được hoàn thiện bằng cách ốp gạch hoặc trát thì nên chừa lỗ button ở mỗi cửa tầng với kích thước và vị trí theo bản vẽ thiết kế mà công ty thang máy cung cấp.
Ngoài ra bên trong hố thang máy cũng không cần phải trát vì khi trát vữa sẽ làm bé kích thước hố thang và tốn chi phí.
Bên cạnh việc dựng hố thang bằng biện pháp dựng cột bê tông xây tường gạch thì có thể dựng bằng khung thép, biện pháp này thường được áp dụng cho những dạng công trình như:
- Nhà cải tạo lắp thêm thang máy
- Thang máy kính
- Lắp thang vào vị trí có kích thước nhỏ, cần tối ưu không gian
Ưu điểm của việc dựng giếng thang bằng thép là thi công nhanh, tiết kiệm diện tích nhưng nhược điểm là giá thành cao.
Trên đây là một số lưu ý khi xây dựng hố thang, để đảm bảo hố thang máy cũng như việc thang máy chạy ổn định sau này, Quý khách nên tham khảo ý kiến tư vấn trực tiếp từ bên nhà cung cấp thang máy từ giai đoạn xây dựng ban đầu. Chúng tôi rất vui lòng được hợp tác với Quý khách hàng.
