3 mức tải trọng phổ biến nhất thường được lựa chọn để lắp cho thang máy gia đình là 300kg, 350kg và 450kg. Với dòng thang máy gia đình liên doanh thì giá 3 loại thang này là tương đương nhau nhưng lại có kích thước khác nhau. Tuỳ vào diện tích xây dựng, cũng như nhu cầu sử dụng để lựa chọn.
Chúng tôi xin được thống kê, so sánh kích thước của 3 loại thang máy gia đình này để Quý khách nắm được thông tin, từ đó quyết định cho gia đình mình loại phù hợp nhất.
*Lưu ý: Đây là thông tin về dòng thang máy liên doanh vì hiện nay đây là loại thang máy gia đình phổ biến nhất do có ưu điểm là giá thành hợp lý, chất lượng tốt, dễ sửa chữa và nhất là thông số kích thước linh hoạt.
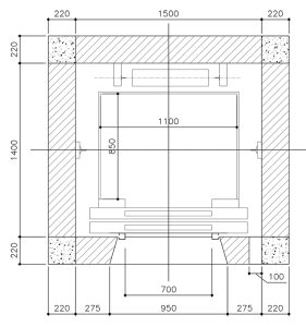
1. Kích thước thang máy 300kg (4 người).
Thông số kỹ thuật
- Kích thước thông thuỷ hố thang: 1500mm x 1400mm
- Kích thước thông thuỷ cabin: 1100mm x 850mm
- Cửa thang: 700mm x 2100

Từ bản vẽ này, ta có thể thấy tổng diện tích dành cho thang máy 300kg là 3,56m2. Mức tải trọng này phù hợp cho những công trình có diện tích xây dựng dưới 40m2.
Với những nhà diện tích bé thì phần thang máy cần phải chọn loại thang mấy cũng như phương án thiết kế xây dựng hố thang tiết kiệm diện tích như:
- Xây tường vách hố thang dày 110mm thay vì 220mm, cột bê tông bốn góc là cột 110mm x 300mm thay vì 220mm x220mm. Nhược điểm của phương án này là khó thì công do cốp pha cột loại này thường không sản có mà phải đóng riêng.
- Chọn giải pháp dựng hố thang bằng khung thép – ốp kính. Đây là cách tiết kiệm diện tích thang máy nhất nhưng nhược điểm là chi phí cao hơn.
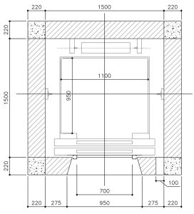
2. Kích thước thang máy gia đình 350kg (5 người).
Thông số kỹ thuật
- Kích thước thông thuỷ hố thang: 1500mm x 1500mm
- Kích thước thông thuỷ cabin: 1100mm x 950mm
- Cửa thang: 700mm x 2100

Thang máy gia đình tải 350kg là mức tải trọng này phù hợp cho những công trình có diện tích xây dựng từ 50m2 đến 80m2. Có thể là công trình nhà ở gia đình hoặc chung cư mini, văn phòng loại bé.
Để tăng diện tích cabin mà không muống nới rộng kích thước hố thang thì có thể cân nhắc lựa chọn đối trọng thang máy bằng thép thay vì bê tông.
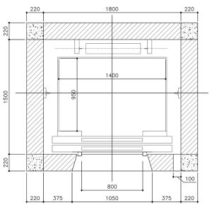
3. Kích thước thang máy 450kg (6 người).
Thông số kỹ thuật
- Kích thước thông thuỷ hố thang: 1800mm x 1500mm
- Kích thước thông thuỷ cabin: 1400mm x 950mm
- Cửa thang: 900mm x 2100

Thang máy gia đình tải trọng 450kg có tổng diện tích là 4.34m2, là mức tải trọng phù hợp cho những nhà diện tích xây dựng rộng, đó có thể là nhà ở, nhất là những nhà cho thuê, căn hộ dịch vụ có diện tích sàn lớn, nhiều tầng.
Trên đây là thông tin về diện tích của 3 tải trọng thang máy thường được lắp cho nhà ở gia đình
MỌI THÔNG TIN CẦN TƯ VẤN XIN LIÊN HỆ:
CÔNG TY TNHH THANG MÁY VÀ XÂY DỰNG FUJITEK
Địa chỉ: Tầng 8, tòa nhà AC, số 3 ngõ 78 Duy Tân, Cầu Giấy, Hà Nội
Hotline: 0965.132.679
